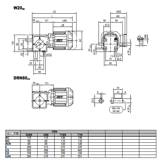
W20

Toutes les informations ne vous sont données qu'à titre indicatif et ne pourront engager notre responsabilité. Nous vous remercions de contrôler l'ensemble des côtes (diamètre d'arbre, hauteur d'axe, fixation bride ou pattes...).

Vitesse Entrée Réducteur

  • Vitesse Entrée 2900 tr/min
  • Vitesse Entrée 1450 tr/min
  • Vitesse Entrée 950 tr/min
  • Vitesse Entrée 725 tr/min
  • Vitesse Entrée 450 tr/min
  • Vitesse Entrée 360 tr/min